| 物件番号 写真画像 |
物件名 - |
価格 | 駅名 和暦築年月 |
バス 徒歩 |
土地面積m2(坪) 建物面積m2(坪) |
間取 間取画像 |
詳細 | 画像 |
|---|---|---|---|---|---|---|---|---|
| Bk43973 |
【不動産 / 新築一戸建て】 上尾市須ケ谷 全1棟 |
3,680万円 | 羽貫駅 R08/01 ![]() |
− 16分 |
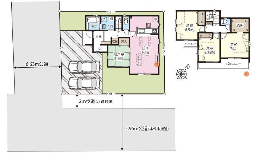
165.62m2 ( 50.1坪 ) 101.02m2 ( 30.55坪 ) |
4LDK |
|
![]() ![]()
|
| 上尾市須ケ谷の新築一戸建て 「グラファーレ上尾市須ケ谷」 ★長期優良住宅認定物件です ★埼玉新都市交通伊奈線(ニューシャトル線)羽貫駅徒歩16分 ★南西角地につき見晴らし・日当たり良好です(南東側公道は歩道があり未接続です) ★敷地50坪以上の整形地 ★LDK約16帖の4LDK ★収納豊富です ★広くて交通量の少ない道を隔てて、スーパーやホームセンターのある敷地が広がっています。買い物はかなりここで済んでしまいそう。程よく離れているので、買い物客の視線などもあまり気にならないと思います ★敷地南東側に2mの歩道(水路 暗渠)あり ★個別浄化槽は法定検査料に13000円かかります ★電気供給のため、敷地内に電柱及び支線が入る場合があります ★司法書士は売主指定 ★セキチュー 上尾店徒歩5分(約350m) ★グラファーレ(タクトホーム)の紹介 ★グラファーレ(タクトホーム)の仕様 ★タクトホームのオプション ★タクトホーム マイセレクト ★マイセレクト紹介動画 |
||||||||






