| 物件番号 写真画像 |
物件名 - |
価格 | 駅名 和暦築年月 |
バス 徒歩 |
土地面積m2(坪) 建物面積m2(坪) |
間取 間取画像 |
詳細 | 画像 |
|---|---|---|---|---|---|---|---|---|
| Bk36232 |
【不動産 / 中古一戸建て】 北足立郡伊奈町小室10375−10 |
720万円 | 丸山駅 S44/07 |
− 18分 |
99.15m2 ( 29.99坪 ) 77.76m2 ( 23.52坪 ) |
3LDK |
|
![]() ![]() ![]()
|
| 北足立郡伊奈町小室の中古一戸建て ★二方向道路角地につき日当たり良好 ★埼玉新都市交通伊奈線(ニューシャトル線)志久駅徒歩14分 ★昭和44年7月築の3LDK ★本件取引には南側私道(3号道路)権利も付属致します(9.45m²が持分となります)。通行掘削および埋設管の利用承諾あり ★確定測量済み ★セットバックあり(2.50m²) ★市街化調整区域ですがどなたでも再建築できます ★契約不適合責任免責 ★平塚公園徒歩10分(約800m) ★ゴルフプラザ伊奈徒歩3分(約280m) ★ラウンドワンスタジアム 上尾店徒歩10分(約800m) |
||||||||
| Bk38966 |
【不動産 / 中古一戸建て】 上尾市平塚985−11 |
1,700万円 | 丸山駅 H15/12 |
− 26分 |
155.31m2 ( 46.98坪 ) 110.95m2 ( 33.56坪 ) |
4LDK |
|
![]() ![]()
|
| 上尾市平塚の中古一戸建て ★平成15年12月築の4LDK ★玄関を開けると木が香る素敵なお住いです ★公園が多く緑に囲まれた立地なので周辺のお散歩なども楽しめそうです ★リビングには、天窓が効果的に設置されています ★収納豊富 ★ワイドバルコニー ★お庭あり ★敷地46坪以上の整形地 ★契約不適合責任免責 ★平塚公園徒歩3分(約220m) ★ラウンドワンスタジアム上尾店徒歩4分(約280m) ★第二産業道路へアクセス良好 |
||||||||
| Bk42516 |
【不動産 / 新築一戸建て】 上尾市上尾下 全4区画 C号棟 |
![]() 2,890万円 |
丸山駅 R07/09 ![]() |
− 21分 |
130.02m2 ( 39.33坪 ) 94.19m2 ( 28.49坪 ) |
4LDK |
|
![]() ![]() ![]()
|
| 上尾市上尾下の新築一戸建て 「ハートフルタウン上尾下4期」 ★駐車スペース2台分付きの4LDK ★対面キッチンのLDKは15.45帖です ★各居室内に収納があります ★バルコニーは2部屋から出入りができます ★路地状敷地 ★セットバックあり ★子育てグリーン住宅支援事業対象物件です。本物件で受け取れる補助金は40万円となります。申請にあたり売主へ手数料支払い(88,000円)が発生すると聞いています ★敷地内に電柱または支線が入る場合があります ★B区画南側角に新設のゴミ置き場あり ★東町小学校徒歩8分 ★妙厳寺幼稚園徒歩7分(約500m) ★あおぞら保育園徒歩6分(約500m) ★さいたま水上公園徒歩6分(約500m) ★飯田産業のオプション ★飯田産業のオプション |
||||||||
| Bk43983 |
【不動産 / 中古一戸建て】 上尾市東町3−1998−7 |
3,480万円 | 丸山駅 H21/08 |
− 30分 |
119.27m2 ( 36.07坪 ) 97.54m2 ( 29.5坪 ) |
3LDK |
|
![]() ![]()
|
| 上尾市東町の中古一戸建て ★東町小学校徒歩1分! ★JR「上尾」駅徒歩26分。平成21年築トヨタホーム施工の3LDK、駐車3台可能。令和7年10月にリフォーム済みで室内は明るくきれいに整備されています ★敷地約36坪! ★2009年ですが築年以上に新しく見える外観でした ★LDKは広々の約18帖です ★リビングイン階段採用です ★2階洋室7.5帖にウォークインクローゼットもあり収納豊富です ★2階各居室はベランダに面しており日当たり、通風良好です ★周辺一備された整った画地です ★前面道路幅員約5.0mあり、駐車がしやすいです ★敷地南に暗きょとなった水路がある様です。扉がついていました。隣家との距離が取れ、かえって良さそうです ★敷地内に電柱と支線あり。邪魔な位置でないため気になならないと思います ★司法書士は売主指定となります ★東町公園徒歩5分(約400m) ★国道17号アクセス良好!商業施設や飲食店多数あり生活便利 |
||||||||
| Bk36854 |
【不動産 / 中古一戸建て】 北足立郡伊奈町栄3−64 |
3,500万円 | 丸山駅 H02/03 |
− 21分 |
221m2 ( 66.85坪 ) 166.59m2 ( 50.39坪 ) |
5LDK |
|
![]() ![]()
|
| 北足立郡伊奈町伊奈町栄3丁目の中古一戸建て ★平成2年3月築の木造2階建 ★敷地広々66坪以上の整形地! ★玄関を開けると素敵な中庭があり、吹きぬけが気持ちいいです。リビングやお風呂などにも面していて、なかなか出来ない体験をなさって頂けそうです ★とても大きな5LDK ★お風呂にサウナルームあり ★収納豊富です ★とても広いグルニエ(小屋裏収納)あり ★二階にミニキッチンあり ★敷地南隣地には現況建物がなく、日当たりも大変良いです ★セントラルクリーニング完備(機器の動作状況によってはユニット交換が必要です) ★伊奈町立南小学校徒歩10分 ★津地児童公園徒歩1分(約44m) ★ビッグ・エー 伊奈栄店徒歩3分(約200m) ★伊奈町ふれあい活動センター ゆめくる徒歩4分(約290m) |
||||||||
Bk44314 |
【不動産 / 新築一戸建て】 上尾市原市1780−12 |
4,798万円 | 丸山駅 R08/02 ![]() |
− 11分 |
156m2 ( 47.19坪 ) 100.6m2 ( 30.43坪 ) |
4LDK |
|
![]() ![]()
|
| 上尾市原市の新築一戸建て ★駐車スペース2台分付きの4LDK ★対面キッチンのLDKは約16帖です ★2階は2面バルコニーで日当たり、通風良好です ★リビング、トイレにエコカラットダウンライト付きです ★47坪以上の整形地 ★北東側6m公道に面しています ★はらいち台団地地区の地区計画あり ★沼南駅徒歩8分 ★沼南駅前からバス利用も可能ですが、本数も少なく現実的ではありません。 ★市街化調整区域ですが、集団的宅地の区域につきどなたでも再建築可能です(諸条件有り) ★原市台公園徒歩1分(約76m) ★第二産業道路へのアクセス良好です |
||||||||
Bk44324 |
【不動産 / 新築一戸建て】 上尾市原市 全1棟 |
4,898万円 | 丸山駅 R07/12 ![]() |
− 13分 |
174.68m2 ( 52.84坪 ) 97.3m2 ( 29.43坪 ) |
3LDK |
|
![]() ![]() ![]()
|
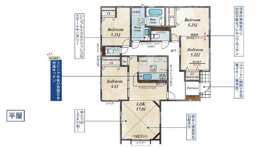
| 上尾市原市の新築一戸建て ★大変珍しい平屋の分譲住宅です。ご自分で注文住宅を建築する以外に、平屋を手に入れる方法は殆どないので、興味のある方はかならずご検討ください。それにしても久しぶりに販売されましたね ★敷地広々52坪以上! ★3LDKですが、壁を設置することで4LDKにも対応可能な設計です ★「子育てグリーン住宅支援事業」対象物件です ★埼玉新都市交通伊奈線(ニューシャトル線)沼南駅徒歩7分 ★南西道路に面しているため日当たり良好 ★LDK約17帖 ★4LDK可変型(10.5帖の洋室を、将来こども部屋として2つの部屋にアレンジできます/仕切壁工事は別途費用がかかります) ★ (はらいち団地地区)★荒川流域0.5から3m未満の浸水区域に該当しています ★原市台公園徒歩2分 ★第二産業道路へのアクセス良好です ★東栄住宅の家造り |
||||||||







Bk44314
