上尾市原市

価格 4,798万円

1/59

物件番号「44314」をお伝えください。

電話でお問合せ

物件情報

価格 4,798万円
種別 【不動産 / 新築一戸建て】
種目 新築一戸建て
物件名 上尾市原市1780-12
土地面積(坪) 47.19坪
建物面積(坪) 30.43坪
建物構造 木造
西暦築年月 2026/02
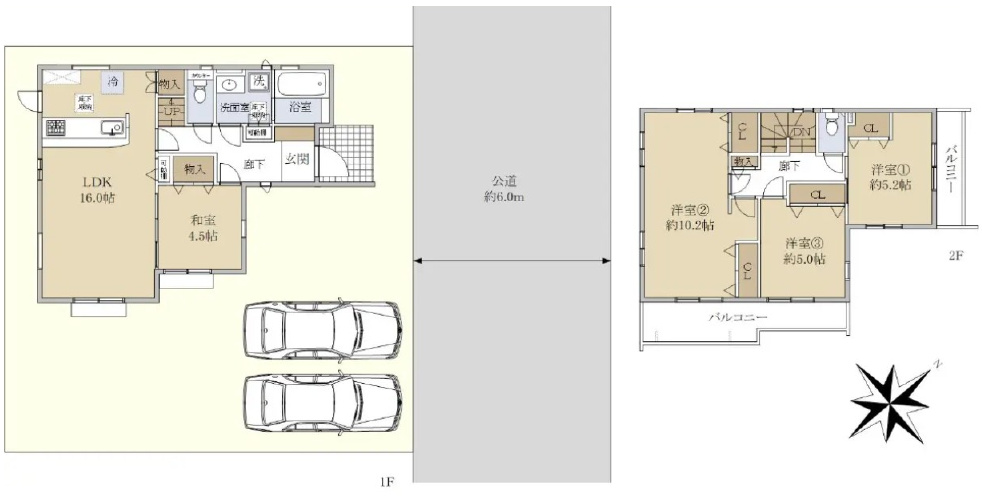
間取 4LDK
コメント 上尾市原市の新築一戸建て

★駐車スペース2台分付きの4LDK

★対面キッチンのLDKは約16帖です

★2階は2面バルコニーで日当たり、通風良好です

★リビング、トイレにエコカラットダウンライト付きです

★47坪以上の整形地

★北東側6m公道に面しています

★はらいち台団地地区の地区計画あり

★沼南駅徒歩8分

★沼南駅前からバス利用も可能ですが、本数も少なく現実的ではありません。

★市街化調整区域ですが、集団的宅地の区域につきどなたでも再建築可能です(諸条件有り)

★原市台公園徒歩1分(約76m)

★第二産業道路へのアクセス良好です

交通 埼玉新都市交通伊奈線(ニューシャトル線) 沼南駅まで 徒歩8分
埼玉新都市交通伊奈線(ニューシャトル線) 丸山駅まで 徒歩11分
JR宇都宮線・湘南新宿ライン・上野東京ライン 東大宮駅まで バス20分 停歩10分
住所1
上尾市原市 地図
住所2 1780-12
接道(全て) 北東 6m(幅員) 公道
不動産周辺状況 原市地区

原市地区の主な施設

 花咲の湯 東大宮中央公園(隣接) 西原テニスクラブ フットサルアリーナ上尾

 いなげや上尾沼南駅前店 まるえつ東大宮店(隣接) コモディイイダ東大宮店(隣接) ライコランド原市店

 上尾市役所 原市支所 上尾図書館 瓦葺分館 上尾図書館 原市公民館図書室 原市公民館 埼玉県立上尾鷹の台高校  上尾消防本部 東消防署 原市分署 原市郵便局 上尾原市団地内郵便局 上尾尾山台郵便局 さいたま農協 原市支店

 埼玉県立がんセンター(隣接) ロイヤルレジデンス上尾 ケアサポート上尾 あんしんホーム 居宅介護支援事業所 あさがお上尾

 原市保育所  かわらぶき保育所 原市南保育所 ゆうゆうくじら保育園 ゆうゆうくじら第2保育園 上尾たいよう保育園 上尾みずほ幼稚園 尾山台幼稚園 原市文化幼稚園 妙厳寺幼稚園 尾山台学童保育所 瓦葺小学童保育所 原市学童保育所 原市第2学童にこにこクラブ 原市第三学童保育所 原市南学童保育所

 国道16号バイパス 第二産業道路 埼玉新都市交通伊奈線(ニューシャトル線) バス便はあまり使えません。尾山台団地以南のみ東大宮駅発着のバス路線が使い易いです。詳細は東大宮駅西口バス路線図および東大宮駅東口バス路線図
階建て 2
用途地域1 無指定
建ぺい率1 60%
容積率1 160%
地目 宅地
土地権利 所有権
都市計画 市街化調整区域
用途地域1 無指定
セットバック
建築確認番号 第25UDI1W建08579号
小学校区(距離) 原市小学校 1,000m
中学校区(距離) 原市中学校 1,300m
特色 公営水道、公共下水、都市ガス、【築年】 建築中、駐車場2台以上、住宅性能評価書取得(予定)、10年保証、フラット35対応、浴室乾燥機、ウォッシュレット付トイレ、シャワー付き洗面化粧台、システムキッチン、TVモニター付インターホン、ペアガラス採用、原市
現況 建設中
取引態様 仲介
※掲載されている物件データが現状と異なる場合は現状を優先します。

YouTube動画

更新情報

情報更新日 2025年12月06日
次回更新予定日 2025年12月07日
取引条件有効期限 2025年12月06日

ローンシミュレーション

物件価格 4,798万円
頭金 万円
金利
借入期間
再計算
月々の返済額
年間の返済額
返済総額
利息合計
※ 毎回の返済額が開始から終了まで均等となる「元利均等返済」で算出しています。
※ 金利は期間中固定となる固定金利を採用しています。
※ 月々の返済額は小数点以下を繰り上げしております
※ シミュレーションでの結果は、あくまでも目安で、概算になります。実際にローン契約をする際は、詳細を金融機関にご確認ください。
※ 実際のローン契約時には諸費用・税金(手数料や印紙税、保証料など)が別途かかりますので、契約の際にご確認ください。

物件番号「44314」をお伝えください。

電話でお問合せ
電話でお問合せ メールでお問合せ
簡易お問合せ

お名前


メールアドレス


問合せ内容


OK