上尾市須ケ谷1丁目

価格 3,680万円

1/76

物件番号「43973」をお伝えください。

電話でお問合せ

物件情報

価格 3,680万円
種別 【不動産 / 新築一戸建て】
種目 新築一戸建て
物件名 上尾市須ケ谷 全1棟
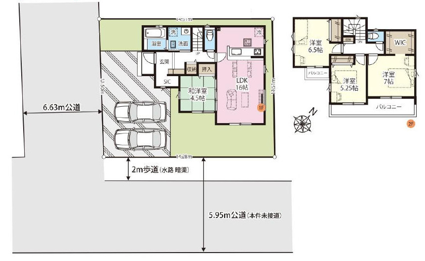
土地面積(坪) 50.1坪
建物面積(坪) 30.55坪
建物構造 木造
西暦築年月 2026/01
間取 4LDK
コメント 上尾市須ケ谷の新築一戸建て

「グラファーレ上尾市須ケ谷」

★長期優良住宅認定物件です

★埼玉新都市交通伊奈線(ニューシャトル線)羽貫駅徒歩16分

★南西角地につき見晴らし・日当たり良好です(南東側公道は歩道があり未接続です)

★敷地50坪以上の整形地

★LDK約16帖の4LDK

★収納豊富です

★広くて交通量の少ない道を隔てて、スーパーやホームセンターのある敷地が広がっています。買い物はかなりここで済んでしまいそう。程よく離れているので、買い物客の視線などもあまり気にならないと思います

★敷地南東側に2mの歩道(水路 暗渠)あり

★個別浄化槽は法定検査料に13000円かかります

★電気供給のため、敷地内に電柱及び支線が入る場合があります

★司法書士は売主指定

★セキチュー 上尾店徒歩5分(約350m)

グラファーレ(タクトホーム)の紹介

グラファーレ(タクトホーム)の仕様

タクトホームのオプション

タクトホーム マイセレクト

マイセレクト紹介動画
交通 埼玉新都市交通伊奈線(ニューシャトル線) 羽貫駅まで 徒歩16分
埼玉新都市交通伊奈線(ニューシャトル線) 伊奈中央駅まで 徒歩23分
JR高崎線・湘南新宿ライン・上野東京ライン 北上尾駅まで 徒歩42分
住所1
上尾市須ケ谷1丁目 地図
住所2 87-2
接道(全て) 南西 6.63m(幅員) 公道 11.5m(接面)
不動産周辺状況 上平地区

上平地区の主な施設

 上平公園(上平市民球場) 平塚公園 ラウンドワンスタジアム上尾店 上尾市平塚サッカー場 ゴルフプラザ伊奈(隣接)クレイン伊奈乗馬クラブ(隣接)

 P・A・P・A上尾ショッピングアヴェニュー 業務スーパー上尾店 ヨークマート桶川店(隣接)肉のハナマサ北上尾店 上尾市場 ベルク上尾東店 ビバホーム上尾店 セキチュー上尾店 ベイシア上尾(2019年開業予定)ドラッグストアセキ平塚店

 上尾市役所 上平支所 上尾図書館 上平公民館図書室  上平公民館 上尾消防本部 東消防署 上平分署(東消防署の方が近いエリアも多いです) 上尾白小鳩郵便局 北上尾駅前郵便局 桶川神明郵便局(隣接)さいたま農協 上平支店

 デイサービスセンター ケアパートナー上尾 リハヴィレッジ上尾 上尾あゆみ会 上平事業所 介護老人福祉施設しののめ 

しらこばと保育所 上平保育所 紅花保育園 ヴィラ・アミクレイシュ 上尾寿幼稚園 つつみの森認定こども園 ココファン・ナーサリー北上尾 プリスクレール ディゾ アンジェ北上尾たいよう保育園 芝川学童保育所 芝川第二学童保育所 上平北学童保育所 上平小学童保育所 上尾かしの木特別支援学校 国際学院高校(隣接) 日本薬科大学さいたまキャンパス(隣接)

 第二産業道路(延伸中)
バス便は平塚周辺の一部など使い易いエリアもあるものの、それ程充実している訳ではありません。上尾市上の一部では桶川駅発着のバスが使える場合がございます。詳細は上尾駅東口バス路線図にてご確認くださいませ。なお北上尾駅発着の路線バスはありません。
階建て 2
用途地域1 無指定
建ぺい率1 50%
容積率1 100%
地目 宅地
土地権利 所有権
都市計画 市街化調整区域
用途地域1 無指定
セットバック
建築確認番号 第HPA-25-09764-1号
小学校区(距離) 上平北小学校 1,700m
中学校区(距離) 上平中学校 1,000m
特色 公営水道、浄化槽、プロパンガス、【築年】 建築中、南道路、駐車場2台以上、10年保証、フラット35対応、耐震・免震構造、ペアガラス採用、TVモニター付インターホン、システムキッチン、シャワー付き洗面化粧台、ウォッシュレット付トイレ、ウォークイン・クローゼット
現況 建設中
取引態様 仲介
※掲載されている物件データが現状と異なる場合は現状を優先します。

YouTube動画

更新情報

情報更新日 2025年12月06日
次回更新予定日 2025年12月07日
取引条件有効期限 2025年12月06日

ローンシミュレーション

物件価格 3,680万円
頭金 万円
金利
借入期間
再計算
月々の返済額
年間の返済額
返済総額
利息合計
※ 毎回の返済額が開始から終了まで均等となる「元利均等返済」で算出しています。
※ 金利は期間中固定となる固定金利を採用しています。
※ 月々の返済額は小数点以下を繰り上げしております
※ シミュレーションでの結果は、あくまでも目安で、概算になります。実際にローン契約をする際は、詳細を金融機関にご確認ください。
※ 実際のローン契約時には諸費用・税金(手数料や印紙税、保証料など)が別途かかりますので、契約の際にご確認ください。

物件番号「43973」をお伝えください。

電話でお問合せ
電話でお問合せ メールでお問合せ
簡易お問合せ

お名前


メールアドレス


問合せ内容


OK