|
中古一戸建て
[価格]
3,900万円
|
||||
|---|---|---|---|---|
| 種目 | 物件名 | 沿線 駅名 |
土地面積(坪) 建物面積(坪) |
建物構造 間取 |
| 中古一戸建て | 【不動産 / 中古一戸建て】 蕨市中央5-11-4 |
その他 その他 |
31.44坪 34.02坪 |
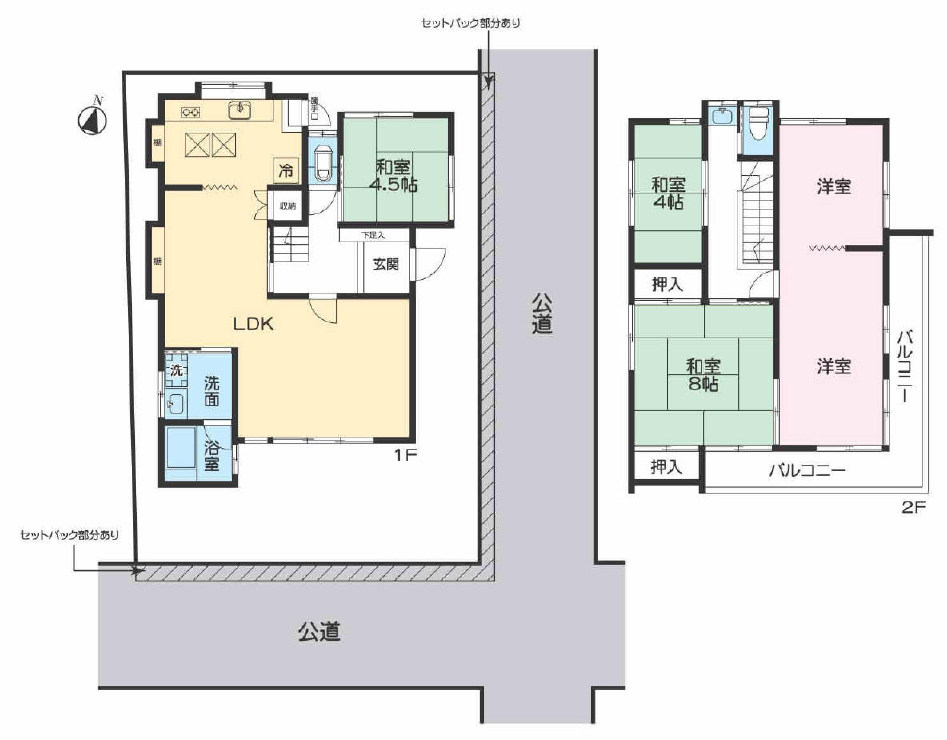
木造 5LDK |

| 物件番号 | 42128 | 土地権利 | 所有権 |
|---|---|---|---|
| 物件名 | 蕨市中央5-11-4 | 建築確認番号 | |
| 住所1 | 蕨市中央5丁目 | 住所2 | 11-4 |
| 交通 | その他 その他まで 徒歩13分 | ||
| バス停手段 | |||
| 土地面積(坪) | 31.44坪 | セットバック面積(坪) | 3.71坪 |
| 地目 | 宅地 | 現況 | 空家 |
| 地勢 | 私道面積 | - | |
| 建物構造 | 木造 | 西暦築年月 | 1977/09 |
| 建物面積(坪) | 34.02坪 | 間取 | 5LDK |
| 階建て | 2 | 駐車場 | 有 |
| 接道(全て) | 東 公道 南 公道 |
||
| 都市計画 | 市街化区域 | 国土法届出 | 不要 |
| 用途地域1 | 第一種住居地域 | 用途地域2 | |
| 建ぺい率1 | 60% | 建ぺい率2 | - |
| 容積率1 | 200% | 容積率2 | - |
| 小学校区(距離) | 中央小学校 400m | 中学校区(距離) | 第二中学校 1,100m |
| 特色 | 公営水道、都市ガス、【築年】 昭和、駐車場 | ||
| 上尾市:不動産周辺状況 | |||
| 取引条件有効期限 | 2025年12月06日 | ||
|
地図を右クリックでルート検索が可能です。
|